Ikkuna- ja Oviaukkojen rungon viimeistely sekä terassikatoksen jatkoa
Aukkojen rungon viimeistely
Terassikatoksen liimapuupilarit odottavat liimapuupalkkien asennusta, mutta siihen tarvitsen apuvoimia asentamaan, joten joudun odottamaan hetken.
Tässä välissä on hyvä hetki viimeistellä ikkuna- ja oviaukkojen rungot. Silloin kun tolpat laitettiin pystyyn, laitettiin vain aukkojen sivuilla olevat tolpat, ja nyt on vuorossa aukkojen vaakapuut ja aukkojen ylä- ja alapuolelle osuvat levyjakotolpat. Olin siirtänyt melkein kaikki telineet ulos katoksen tekemiseen, joten nyt pääsin tasolaaserilla vaaittamaan kaikkien aukkojen yläreunat samoihin korkoihin suhteellisen hyvin. Aloitin päättämällä normaalin oven yläkoron, ja merkkasin sitä korkoa talon keskellä olevaan liimapuupilariin. Tästä saan sitten saman koron uudestaan kun/jos siirrän tasolaaseria toiseen paikkaan. Korko minkä merkkasin on 2120mm tulevaa lattian tasoa ylempänä. Ovien karmikorkeus on 2090mm, joten jää tilkitsemisvaraa yhteensä 30mm.
Asetin sitten tasolaaserin sellaiseen paikkaan, että saisin mahdollisimman paljon aukkoja merkattua samasta laserpaikasta. Käytössäni on tasolaaserin säädettävä jalusta, joten siinä oli juuri ja juuri riittävästi säätövaraa, että sain laserin suoraan osoittamaan kyseistä korkoa. Jos säätövara ei olisi riittänyt, olisin joutunut merkkaamaan kyseistä korkoa apurimaa käyttäen. Päivänvalo oli sen verran kirkas, ettei laaseria nähnyt paljaalla silmällä, joten käytin tasolaaserin vastaanotinta apuna. Eli aloitin merkkaamaan aukkoja niin, että merkkasin kyseistä korkoa aukkojen molemmin puolin. Merkkasin kaikki mitkä pystyin ilman että oli jotain olisi ollut laaserin tiellä ja siirsin sitten tasolaaserin toiseen paikkaan ja jatkoin merkkaamista. Jouduin pitämään tasolaaseria neljässä eri kohdassa että sain kaikki korot laitettua. Muutamaa reevaa jouduin siirtämään, kun sattui osumaan kohdalle.
Kun kaikki korot oli laitettu, pakkasin laaserin pois ja aloin mittaamaan vaakapuiden pituuksia. Vertailin mittoja piirustuksiin ja mittoihin mitä olin kirjoittanut tolppavaiheessa alajuoksuun (esim. ikkuna 15x14 (1520)). Tässä siis kyseessä ikkuna joka on 1500mm leveä ja 1400mm korkea. Suluissa oleva mitta on aukkojen mitta, eli siinä on mukana tilkkimis- /asennusvara. Jos mitta poikkesi kyseisestä mitasta, tarkistin molemmin puolin olevien tolppien suoruuden. Jotkut tolpat ovat kaaressa, omien sisäisten jännityksien seurauksista. Ja mikäli jotkut tolpat oli kaarella suoristin ne. Tämän jälkeen pystyin asentamaan aukkojen yläpuolella olevat vaakapuut. Aukkopalkit ovat jo tehty yläjuoksujen yhteydessä, joten tässä vaiheessa ei tarvinnut enää loveta aukkopalkkeja.
Tässä meidän talossa kaikkien aukkojen yläkorko on sama, lukuunottamatta olkkarin yläikkunoita. Kun aukkojen yläpuolinen vaakapuu oli asennettu, mittasin alas alapuun paikan aina kyseessä olevan ikkunan mukaan. Joten jos kyseessä oli 1400mm korkea ikkuna, niin mittasin alas 1420mm, jotta siihenkin tulisi tilkkimisvara. Kun sekä ylä- että alapuu oli asennettu pystyin asentamaan puuttuvat pystytolpat jotka sopivat tuulensuojalevytykseen eli k600.
Pari päivää meni niin, että oli kaikki paitsi olkkarin yläikkunoiden yläpuoli laitettu (ovat niin korkealla ettei tikkaat riittänyt). Nyt alkoi jo hahmottumaan huonejaot ja fiilis oli hyvä kun näki selvemmin aukkojen paikat.
Terassikatto jatkuu..
Apurini oli nyt saapunut kotimaahan ja pääsimme nostamaan terassikaton liimapuupalkit paikoilleen. Olin jo aiemmin sahannut palkit valmiiksi hieman ylipitkiksi, jotta asennus sujuisi mahdollisimman sujuvasti. Tilasin nostoauton työmaalle. Tämä nosto oli tehtävä etupihan nurmikkoalueelta, joten oli hyvä että oli ollut kuivaa, niin auto ei uponnut juurikaan maahan. Liimapuupalkit oli niin kaukana nostopaikasta että jouduimme ensin siirtämään ne lähemmäksi. Mutta sitten sujuikin palkkien nosto hyvin ilman ongelmia. Kiinnitin palkit tolppiin ja tukiin muutamalla naulalla tässä vaiheessa, ja lisään myöhemmin myös naulalevyt pilari-palkki liitokseen, mutta maalaan kaikki liimapuut ennen sitä. Näin naulalevyjen allekin tulee suojaava kerros maalia.
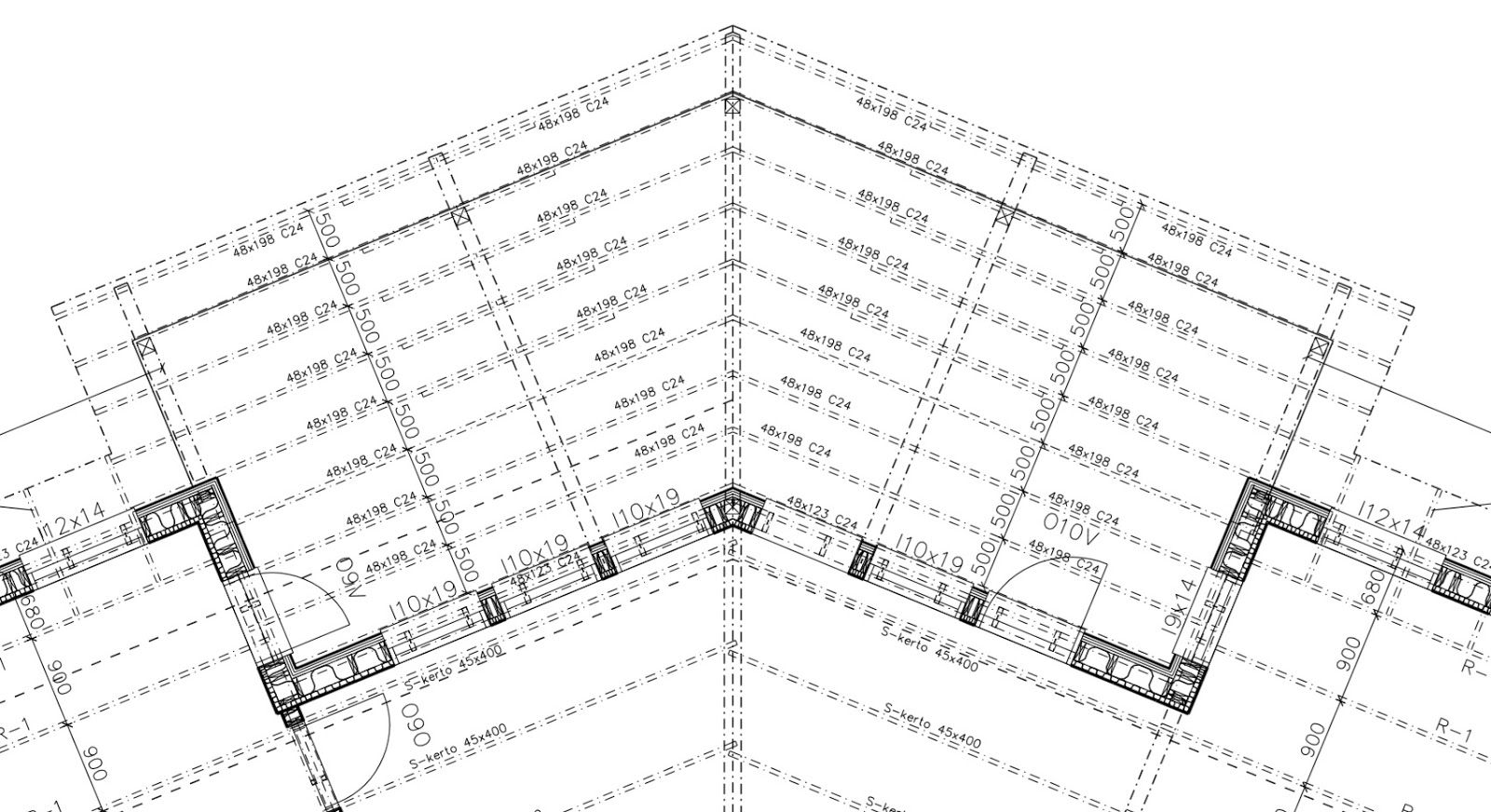
Nyt kun kaikki palkit olivat paikoillaan, oli vuorossa jatkaa molempien alapalkkien kohdalla tukia olemassa olevan seinän päällä. Kyseiset tuet tulee siis samaan korkoon kuin liimapalkin yläpinta. Tämä, jotta kaikki kannattajat tulevat samalla loveuksella/sahauksella. Kun nämä tuet oli tehty oli aikaa aloittaa kannattajien asennus. Terassikaton kannattajat ovat 48x198 C24 k500 jaolla. Kannattajien pituus ei riittänyt että olisin saanut samalla puulla tehtyä koko matkan, joten jouduin jatkamaan kannattajia keskiliimapuupalkin kohdalla. Asensin molemmin puolin alimmat kannattajat ensin ja kiinnitin ne kulmalevyillä ja kampanauloilla.
Sitten oli vuorossa asentaa loput kannattajat harjaan asti. Harjan kohdalla loveukset ovat taas aika erikoiset, samalla tavalla kuin isossa katossa. Tämä, koska kannattajat tulee 22.5 asteen kulmassa harjapalkkiin joka nousee noin 1:10:een. Eli kaikkea muuta kuin 90 astetta. Uloin kannattaja oli pakko jatkaa samassa linjassa, koska tämä muodostaa räystään etulinjan. Lisäsin tähän sisäpuolelle koolauksen, joka liittää kannattajat yhteen. Tässä kohtaa räystäs on erilainen kuin muualla (tämä tapa on enemmän käytetty hirsirakentamisessa), eli viimeinen kannattaja lepää liimapuupalkkien ulokkeilla, jotka ovat noin 50cm uloimpana kuin tolpat. (kts.kuva).
Nyt koko katon kantavat rakenteet ovat paikoillaan, paitsi toki tuulikaapin erilliskatto.
Joten, jotta saataisiin pian katto asennettua, on seuraavaksi vuorossa räystäiden otsalaudat/reunalaudat. Kattolevytys kiinnitetään näihin, joten ne on oltava paikoillaan ennen katon asennusta.
Mutta tästä enemmän seuraavassa postauksessa.
Terassikatoksen liimapuupilarit odottavat liimapuupalkkien asennusta, mutta siihen tarvitsen apuvoimia asentamaan, joten joudun odottamaan hetken.
Tässä välissä on hyvä hetki viimeistellä ikkuna- ja oviaukkojen rungot. Silloin kun tolpat laitettiin pystyyn, laitettiin vain aukkojen sivuilla olevat tolpat, ja nyt on vuorossa aukkojen vaakapuut ja aukkojen ylä- ja alapuolelle osuvat levyjakotolpat. Olin siirtänyt melkein kaikki telineet ulos katoksen tekemiseen, joten nyt pääsin tasolaaserilla vaaittamaan kaikkien aukkojen yläreunat samoihin korkoihin suhteellisen hyvin. Aloitin päättämällä normaalin oven yläkoron, ja merkkasin sitä korkoa talon keskellä olevaan liimapuupilariin. Tästä saan sitten saman koron uudestaan kun/jos siirrän tasolaaseria toiseen paikkaan. Korko minkä merkkasin on 2120mm tulevaa lattian tasoa ylempänä. Ovien karmikorkeus on 2090mm, joten jää tilkitsemisvaraa yhteensä 30mm.
Olkkarin aukkojen teko meneillään. |
Asetin sitten tasolaaserin sellaiseen paikkaan, että saisin mahdollisimman paljon aukkoja merkattua samasta laserpaikasta. Käytössäni on tasolaaserin säädettävä jalusta, joten siinä oli juuri ja juuri riittävästi säätövaraa, että sain laserin suoraan osoittamaan kyseistä korkoa. Jos säätövara ei olisi riittänyt, olisin joutunut merkkaamaan kyseistä korkoa apurimaa käyttäen. Päivänvalo oli sen verran kirkas, ettei laaseria nähnyt paljaalla silmällä, joten käytin tasolaaserin vastaanotinta apuna. Eli aloitin merkkaamaan aukkoja niin, että merkkasin kyseistä korkoa aukkojen molemmin puolin. Merkkasin kaikki mitkä pystyin ilman että oli jotain olisi ollut laaserin tiellä ja siirsin sitten tasolaaserin toiseen paikkaan ja jatkoin merkkaamista. Jouduin pitämään tasolaaseria neljässä eri kohdassa että sain kaikki korot laitettua. Muutamaa reevaa jouduin siirtämään, kun sattui osumaan kohdalle.
Kun kaikki korot oli laitettu, pakkasin laaserin pois ja aloin mittaamaan vaakapuiden pituuksia. Vertailin mittoja piirustuksiin ja mittoihin mitä olin kirjoittanut tolppavaiheessa alajuoksuun (esim. ikkuna 15x14 (1520)). Tässä siis kyseessä ikkuna joka on 1500mm leveä ja 1400mm korkea. Suluissa oleva mitta on aukkojen mitta, eli siinä on mukana tilkkimis- /asennusvara. Jos mitta poikkesi kyseisestä mitasta, tarkistin molemmin puolin olevien tolppien suoruuden. Jotkut tolpat ovat kaaressa, omien sisäisten jännityksien seurauksista. Ja mikäli jotkut tolpat oli kaarella suoristin ne. Tämän jälkeen pystyin asentamaan aukkojen yläpuolella olevat vaakapuut. Aukkopalkit ovat jo tehty yläjuoksujen yhteydessä, joten tässä vaiheessa ei tarvinnut enää loveta aukkopalkkeja.
Toisen siivekkeen aukot tehty. |
Tässä meidän talossa kaikkien aukkojen yläkorko on sama, lukuunottamatta olkkarin yläikkunoita. Kun aukkojen yläpuolinen vaakapuu oli asennettu, mittasin alas alapuun paikan aina kyseessä olevan ikkunan mukaan. Joten jos kyseessä oli 1400mm korkea ikkuna, niin mittasin alas 1420mm, jotta siihenkin tulisi tilkkimisvara. Kun sekä ylä- että alapuu oli asennettu pystyin asentamaan puuttuvat pystytolpat jotka sopivat tuulensuojalevytykseen eli k600.
Pari päivää meni niin, että oli kaikki paitsi olkkarin yläikkunoiden yläpuoli laitettu (ovat niin korkealla ettei tikkaat riittänyt). Nyt alkoi jo hahmottumaan huonejaot ja fiilis oli hyvä kun näki selvemmin aukkojen paikat.
Terassikatto jatkuu..
Apurini oli nyt saapunut kotimaahan ja pääsimme nostamaan terassikaton liimapuupalkit paikoilleen. Olin jo aiemmin sahannut palkit valmiiksi hieman ylipitkiksi, jotta asennus sujuisi mahdollisimman sujuvasti. Tilasin nostoauton työmaalle. Tämä nosto oli tehtävä etupihan nurmikkoalueelta, joten oli hyvä että oli ollut kuivaa, niin auto ei uponnut juurikaan maahan. Liimapuupalkit oli niin kaukana nostopaikasta että jouduimme ensin siirtämään ne lähemmäksi. Mutta sitten sujuikin palkkien nosto hyvin ilman ongelmia. Kiinnitin palkit tolppiin ja tukiin muutamalla naulalla tässä vaiheessa, ja lisään myöhemmin myös naulalevyt pilari-palkki liitokseen, mutta maalaan kaikki liimapuut ennen sitä. Näin naulalevyjen allekin tulee suojaava kerros maalia.
![]() |
Otos rakennekuvista |
Liimapuupalkit asennettu. |
Nyt kun kaikki palkit olivat paikoillaan, oli vuorossa jatkaa molempien alapalkkien kohdalla tukia olemassa olevan seinän päällä. Kyseiset tuet tulee siis samaan korkoon kuin liimapalkin yläpinta. Tämä, jotta kaikki kannattajat tulevat samalla loveuksella/sahauksella. Kun nämä tuet oli tehty oli aikaa aloittaa kannattajien asennus. Terassikaton kannattajat ovat 48x198 C24 k500 jaolla. Kannattajien pituus ei riittänyt että olisin saanut samalla puulla tehtyä koko matkan, joten jouduin jatkamaan kannattajia keskiliimapuupalkin kohdalla. Asensin molemmin puolin alimmat kannattajat ensin ja kiinnitin ne kulmalevyillä ja kampanauloilla.
Seinän päällä oleva tuki |
Alemmat katoksen kannattajat asennettu |
Sitten oli vuorossa asentaa loput kannattajat harjaan asti. Harjan kohdalla loveukset ovat taas aika erikoiset, samalla tavalla kuin isossa katossa. Tämä, koska kannattajat tulee 22.5 asteen kulmassa harjapalkkiin joka nousee noin 1:10:een. Eli kaikkea muuta kuin 90 astetta. Uloin kannattaja oli pakko jatkaa samassa linjassa, koska tämä muodostaa räystään etulinjan. Lisäsin tähän sisäpuolelle koolauksen, joka liittää kannattajat yhteen. Tässä kohtaa räystäs on erilainen kuin muualla (tämä tapa on enemmän käytetty hirsirakentamisessa), eli viimeinen kannattaja lepää liimapuupalkkien ulokkeilla, jotka ovat noin 50cm uloimpana kuin tolpat. (kts.kuva).
Terassikaton runko yhtä kannattajaa vailla valmis. |
Katon muoto alkaa hahmottumaan |
Nyt koko katon kantavat rakenteet ovat paikoillaan, paitsi toki tuulikaapin erilliskatto.
Joten, jotta saataisiin pian katto asennettua, on seuraavaksi vuorossa räystäiden otsalaudat/reunalaudat. Kattolevytys kiinnitetään näihin, joten ne on oltava paikoillaan ennen katon asennusta.
Mutta tästä enemmän seuraavassa postauksessa.
Hieno projekti teillä ollut. Iso terassikatos vaikuttaisi kertomuksen perusteella teille tulevan. Hienoa, että puurakentaminen on vielä voimissaan. Veljeni rakennutti rakennuksen Tampereelle, missä myös liimapuupilareita käytettiin. Harmiksi kahdessa pilarissa ilmeni halkeamat mihin täytyi injektiot tehdä halkeamien korjaamiseksi. Varsin vaivattomasti kuulemma työ onnistui ammattilaisilta ja ei tarvitse pelätä, että liimapuut täytyisi korvata toisilla. https://www.oivaset.fi/betonirakenteiden-korjaus
VastaaPoista